GoPunta

La Barra, , Maldonado

Propiedad en Alquiler Temporal

USD 0

  • Terreno
    Tipo de Propiedad
  • 1046 m2
    Superficie
  • 0 m2
    Edificable

Descripción

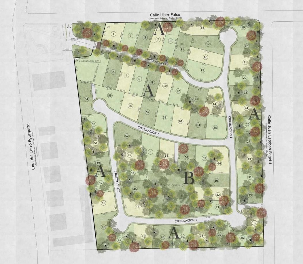
Venta de Lote en La Barra, MaldonadoViví la tranquilidad de Estancia Miramar en un entorno natural único.Este lote ofrece una ubicación privilegiada, rodeada de verde y con el equilibrio justo entre privacidad y cercanía a los espacios comunes.Ideal para quienes buscan un lugar para descansar, disfrutar y construir su proyecto de vida en un entorno seguro y exclusivo.

Características

  • Superficie:

  • 1046


  • Imp. Inmobiliario :

  • 0

  • Imp. Primaria :

  • 0

Ubicación Localidad, Departamento


WhatsApp